Plot 3, The Glenfarg Gleneagles Drive,
Woodhall Spa
New home
£264,995
Lincolnshire,
LN10 6PL
3
1
1
4
Key Features
Stylish 3 Bedroom New Build with Car Port
South Facing Garden
Choice of Floorings
Choice of Kitchen Fittings and Neff Appliances as Standard
Oak Veneer Doors, Column Radiators
Turfed front gardens and Gravelled Drive
Air Source Heating
£250 Reservation Fee
About this property
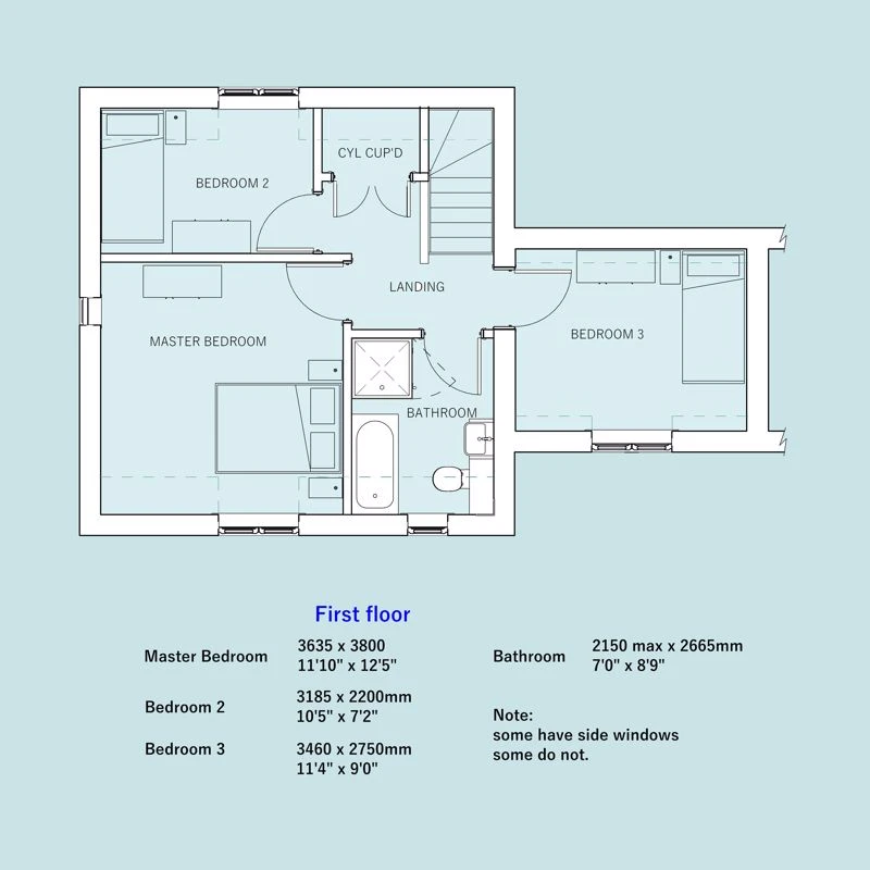
                                     *** MOVE START PROMOTION ON SELECTED PLOTS *** The Glenfarg is a three bedroom semi detached house with the benefit of carport beneath the generous sized property, stylishly designed to appeal to young couples and those with families looking to move their way up the housing ladder. The property leads into the bright and airy dining kitchen, before leading into the sitting room to the rear of the property, having French doors out into the rear garden. The first floor houses the three bedrooms and family bathroom.
With tree-lined avenues, independent shops, and a fascinating heritage, Woodhall Spa is one of Lincolnshire’s most desirable locations. Whether you're drawn to its history, outdoor pursuits or strong sense of community, this village has something for everyone.