Robert Bell & Company

Development Site Cliff Road,
Lincoln

SSTC Guide Price £270,000
Lincolnshire, LN2 3JN

Key Features

  • DEVELOPMENT OPPORTUNITY!
  • For three high quality bungalows
  • Plots 1 and 2 - identical
  • Plot 3 - includes a garage
  • Large living dining kitchen
  • Bedroom with en-suite
  • 2nd Bedroom and bathroom

About this property

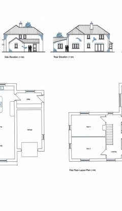
This is a marvellous development opportunity, for the creation of three high quality detached bungalows, set in an attractive exclusive setting on the north western country fringe of the ever-popular north Lincoln village of Welton. The very attractive bungalow designs (GIFA 831 ft2 / 77.21 m2) offer an appealing layout of accommodation with large feature Living Dining Kitchen, Master Bedrooms with En-suite Shower Room, a further Bedroom of excellent proportions and bathroom. The design of plot 3 includes garaging. Welton is one of the most sought-after north Lincoln villages for families, as it offers an excellent range of local amenities which includes a post office/Co-op supermarket, public houses, golf club, primary school, the OFSTED Outstanding William Farr secondary school and yet more. T

Similar properties

View more properties